Projekt domu w Kocmyrzowie
Kategoria
Lokalizacja
Kocmyrzów k/Krakowa
Klient
Inwestor Indywidualny
Opis
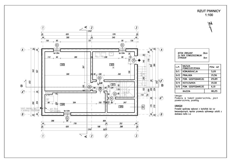
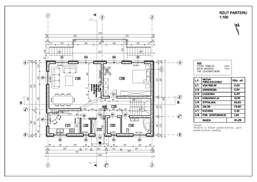
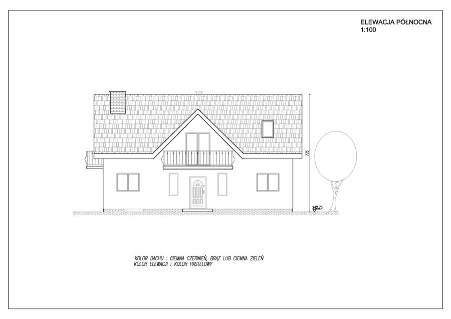
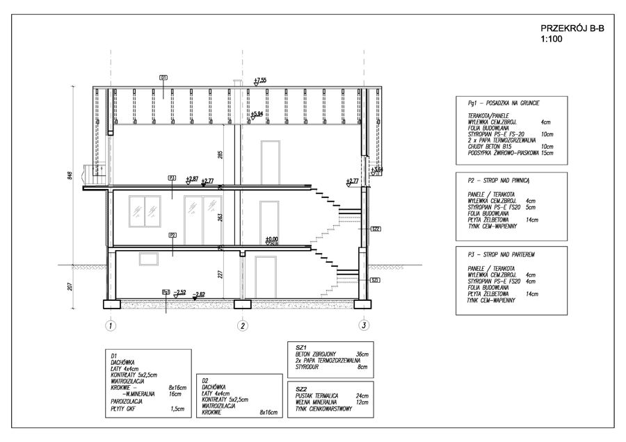
Projekt indywidualny domu jednorodzinnego z pełnym podpiwniczeniem, dostosowanego do działki o dużym nachyleniu
OCTOPUS PROJEKT - LOADING
Octopus Projekt
Kategoria
Lokalizacja
Kocmyrzów k/Krakowa
Klient
Inwestor Indywidualny
Opis
Projekt indywidualny domu jednorodzinnego z pełnym podpiwniczeniem, dostosowanego do działki o dużym nachyleniu